SaezJoannon│Arquitectos

Conjunto Nueva Esperanza

Ficha técnica

Conjunto Social Nueva Esperanza

Categoría:

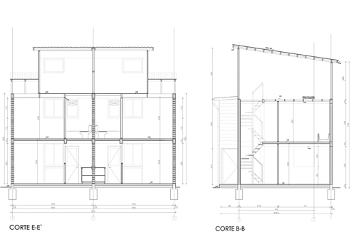
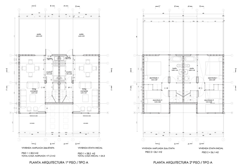
Conjunto de 150 viviendas

Arquitectos:

Cristián Sáez - Ximena Joannon

Colaboradores:

Juan Pablo della Maggiora, Aníbal Córdova

Proyecto de cálculo:

Andrés Larraín

Constructora:

Constructora Boetsch s.a.

Mandante:

Fundación un techo para Chile

Ubicación:

Lo Blanco 1411, San Bernardo, Santiago.

Superficie terreno:

18500 m2

Superficie construida:

10937 m2

Número de Viviendas:

146

M2 por vivienda:

72

Materialidad principal:

Hormigón visto, albañilería armada, vidrio, fibrocemento

Año de proyecto:

2008

Año de construcción:

2009